|
Outdoor furnace plans
Move your home heating and hot water "off the grid" with these plans for a Arkansas wood stove.
Why pay for electric or gas heat when you can burn free wood fuel and save? Tell your gas company to take a hike and build this unique outdoor wood furnace
to heat your home the "green" way just in case the globe doesn't warm in time for next winter. And with a wood burning stove, you are all set in case of
blackouts or power outages during storms.
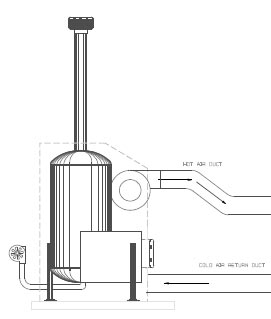
This central heat wood stove will heat an entire house and uses new or salvaged components for the firebox and standard galvanized framing for the outdoor housing.
This design incorporates the best features of popular commercial units. Thermostat controlled with an automatic damper control and uses an automatic blower ducted from the housing.
Once the coals are banked, recovery is quick on those cold mornings when the unit has been idle through the night. An auxiliary blower eases a cold start.
The design is straight forward with easy to read drawings. The design includes the installation of a heater coil for hot water.
It is essential that the wood burning furnace be installed at least 12 feet from the house to be heated with at least that much clearance all around for general safety.
Insurance requirements vary on this distance. It is YOUR responsibility to determine this distance.
This detailed set of cad assembly drawings for building a Arkansas wood stove is printed in black and white on roll paper and includes 4 pages printed on (1) 36" x 48" sheet and (1) 24" x 18" sheet.
IMPORTANT NOTE: Our plans are designed to be simple enough to be understood by the do-it-yourselfer but are NOT "step-by-step" instructions. Actual construction of items using these plans may require specialized engineering knowledge, tools and building/manufacturing/fabrication expertise.
Although we appreciate feedback to improve our designs, we do NOT provide engineering advice or consultation services.
By ordering these plans, you are agreeing to our DISCLAIMER and TERMS AND CONDITIONS. Please ASK ALL QUESTIONS prior to ordering plans because like computer software, PLANS ARE NONRETURNABLE AND NONREFUNDABLE.
Download these plans now for just $5
You can download these plans to view on your computer monitor
and zoom in/out to view details but for printing, YOU MUST HAVE A 36" WIDE PLOTTER TO PRINT READABLE PLANS.
Below are scaled down versions of the actual plans you get:
PROCEDURE: After checking out you will be given a link where you can download your plans right away. If you have trouble with getting the download, please CLICK HERE to contact us.
Click "Buy Now" button below to order plans by instant download.
|
IMPORTANT - READ BEFORE ORDERING
Click the "BUY NOW" button to order. A shopping bag will appear on the bottom right of your screen. You can checkout by clicking the shopping bag  , or add other items then click the shopping bag when your order is complete. To delete items from shopping bag, click the shopping bag and then click the X in the upper right corner of item image you wish to delete
If you checkout using your credit card or Paypal through our regular procedure, be sure to input your EMAIL ADDRESS carefully
as the payment receipt sent there immediately after placing your order will include a link to your download.
|
Order paper plans for only $20 Free shipping to USA and Canada
Printed on poster-size 36" wide roll paper.
Approximate shipping time from order placement to delivery: 1 week
In Stock - ships daily by USPS 1st class mail.
PROCEDURE:
We will send you an email receipt for your payment immediately following order placement. Upon shipment, we will send you an email with shipping information.
Click "Buy Now" button below to order paper plans by mail.
You can also order by mail or by phone:
CLICK HERE to order by mail
CLICK HERE to order by phone
IMPORTANT COPYRIGHT INFORMATION
Use of MyDIYPlans™ plans is subject to certain restrictions. By ordering
our plans, you agree to the following:
All of MyDIYPlans™ plans are owned and copyrighted by the Do It Yourself Store, Rockwall, TX USA © 2009 ALL RIGHTS RESERVED.
These plans are only to be used by do-it-yourselfers to make a finished product for personal use or for
resale at craft fairs or outlets. All resale finished products must include an attached design credit to MyDIYPlans™.
Unauthorized copying and redistribution of MyDIYPlans™ plans, or using the plans for anything else including commercial mass-production is a copyright infringement,
as prohibited by the U.S. Copyright Act, 17 U.S.C. 101 et seq., and International copyright law and is in direct violation of the international rights of the copyright owner.
|
|
|
|
|
FEATURED PROJECT Pumping windmill |
|
How would you get water... if energy costs skyrocketed.. or if a terrorist detonated a nuclear bomb causing an electromagnetic pulse that plunged the world back into 1850’s technology?
"Well" here is your solution... a wind driven water pump!
CLICK HERE to order plans!
|
|
|
|
FEATURED PROJECT Gold drywasher |
|
With gold over $1000/oz., now is the time to go prospecting! This lightweight, sturdy and portable
gold drywasher can be carried like a backpack or pulled on bike wheels to your "secret dig", and can be
made for less than $50 using salvaged materials.
CLICK HERE to order plans!
|
|
|
|
FEATURED PROJECT Bee hive |
|
Attention backyard beekeepers! Now you can have free honey all year long
with your very own homemade bee hive.
CLICK HERE to order plans!
|
|
|
|
ORDER PLANS NOW and BUILD NOW! |
|
|
|